מנעול חבוי רב בריחי תוצרת איטליה, מוצר מקורי של JUWEL (מכונה גם מנעול כספת – מנעול עליון – מנעול בטחון) מוגן בפני קידוח ברמת בטיחות High Security ומשולב מנעול מנוף ומותאם להתקנה בחלק העליון של דלתות פלדה לתוספת בטחון והגנה
| מותאם לדלת | דלת עץ/מתכת/פלדה |
|---|---|
| מופעל באמצעות | מפתח כספת |
| סרט חזית | פינות מעוגלות |
| פס מתכתי מלבני המיוצר ל- 3 מטרות שימוש. סרט חזית למנעול חבוי או כסרט חזית נגדי למנעול חבוי או כסרט חזית נגדי משולב מגנט. | |
| צד דלת | ימין, שמאל |
| לכל דלת סובבת יש שני צדדים : ימין או שמאל. את צד הדלת מגדירים לפי מיקום צירי הדלת. כשצירי הדלת מותקנים בצד ימין הרי זאת דלת ימין - right וכן להיפך. הגדרה זאת חלה על דלתות הנפתחות כלפי פנים החדר. | |
| מנעול הפיך | כן |
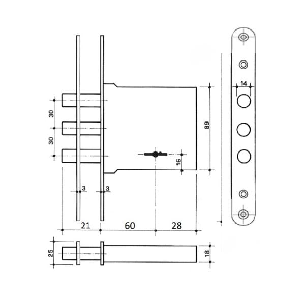
| Backset | 60 מ"מ |
| בהקשר מידות מנעול חבוי לדלת, המונח Backset מייצג את המרחק ממרכז חור הצילינדר לקצה המנעול החבוי. מידת ה- Backset רלוונטית גם למנעולי ריהוט. | |
| פתיחת דלת | כלפי פנים/חוץ |
| פעילות מנעול | מכני |
| סוג בריח | בריח deadbolt |
| בריח dead-bolt יותר בטיחותי מלשונית ה Latch-bolt וזאת בשל עובי הבריח | |
| מס' בריחים | 3 |
| דגם מנעול | 1806-1 |
| ארץ יצור | איטליה |
| Bמרכז צילינדר - קצה מנעול: | 60 מ"מ |
|---|---|
| Cגובה גוף מנעול: | 89 מ"מ |
| Dרוחב גוף מנעול: | 85 מ"מ |
| Eאורך סרט חזית: | 187 מ"מ |
| Fרוחב סרט חזית: | 22 מ"מ |
- יש לוודא מידות ותאימות התקנת מנעול בטרם ההזמנה
- תכולת מארז : מנעול חבוי, 3 מפתחות, מארז ניטים, פחיות חיפוי פנימי וחיצוני
- סרט חזית המנעול היא עגולה ומוגדרת כסרט חזית ארוכה באורך של 187 מ״מ ורוחב של 22 מ״מ.
- חשיפת מוצרי נעילה לתנאי חוץ ולחומרים כימיים שאינם מאושרים עלולה להוביל לשינוי בגוון המוצר, לקילוף הציפוי (ניקל מוברש ואחרים) ולבלאי מואץ ואף להרס המוצר.
- שרשראות, מנעולי פרסה/תליה ועוגנים ויתר מוצרי נעילה יכולים להיפרץ באמצעים שונים ובהם חיתוך בדיסק חשמלי, חיתוך הידראולי, חיתוך מכני - תוכי מספריים וכן כתוצאה מביצוע וונדליזם. אין אחריות ולא תהיה שום טענה מצד הרוכש כלפי החנות באם מוצר הנעילה הנרכש נפרץ או נהרס בכל שיטת פריצה כלשהי או פעולה לא נכונה
- לשמירה על תקינות המוצר, יש למנוע חדירת לכלוך, לחות או דבק למנגנון. חל איסור על שימוש בתרסיסים לא מאושרים, שכן אלו עלולים לשבש את פעולת המנעול ולהוציאו מכלל שימוש.
- יש להימנע ממכות או משריטות בגוף המוצר. פגיעה בציפוי הצבע עלולה להוביל להיווצרות חלודה ולבלאי מואץ.
- מוצר זה נמנה עם קטגוריית המוצרים הדורשים התקנה על ידי מנעולן מוסמך או איש מקצוע בעל רקע טכני מוכח בתחום הפרזול. ככל שאין לרוכש את המיומנות הנדרשת, מומלץ לוודא את כל הפרטים הטכניים בטרם ביצוע ההזמנה. מובהר כי התקנת מנגנונים, מנעולים חבויים, ידיות בהלה, צירים או צילינדרים (בדגש על דלתות פלדה, אש, מוסדות ויציאות חירום) על ידי גורם שאינו מוסמך, או ביצוע התקנה רשלנית, עלולים להוביל לפגיעה פיזית במתקין ובמשתמשים, לגרימת נזק לצד ג' ולהרס מכלולי הדלת. התקנה שלא בוצעה על ידי איש מקצוע מוסמך תביא לביטול האחריות על המוצר.
- כלל הנתונים הטכניים המופיעים באתר, לרבות מידות (גובה, רוחב, עומק), משקל, נפח ועובי דופן, מבוססים על נתוני היצרן ועוברים בדיקות אימות מדגמיות על ידינו. במקרה של גילוי אי-תאמה בין הנתונים המפורסמים למוצר בפועל, נודה לכם באם תעדכנו את שירות הלקוחות בהקדם ובטרם ביצוע התקנה כלשהי במוצר.
- מוצרי הנעילה באתר אינם כוללים כלי עבודה או אביזרי התקנה (ברגים, דיבלים וכדומה), אלא אם צוין אחרת במפורש בתיאור המוצר. באחריות הרוכש להצטייד בציוד המתאים לביצוע ההתקנה.
- לשמירה על תקינות המוצר, השתמשו אך ורק במפתחות תקינים ונקיים. שימוש במפתח סדוק, עקום או שאינו מתאים עלול להרוס את מנגנון הנעילה ולהוציאו מכלל שימוש.
JUWEL
JUWEL S.r.l. היא יצרנית כספות איטלקית שנוסדה ב 1922. JUWEL היא אחת מהיצרניות המובילות של כספות קיר, רהיטים ובתי מלון ומנעולי שקע לדלתות.



